●売出速報● フローレンス野田グランドアーク(フローレンスノダグランドアーク)
● 売 出 速 報 ●
『フローレンス野田グランドアーク』
・平成20年2月築
・鉄筋コンクリート造
・15階建て
・総戸数:44戸
・全戸南向き
・敷地内に1台平面駐車場が無料で確保できます
・ペット飼育可能
・フルフラット設計
・宅配ボックス有
〈周辺環境〉
・らむ~マート ・・・ 徒歩1分
・生鮮市場きむら ・・・ 徒歩9分
・A-プライス岡山店 ・・・ 徒歩8分
・おおもと病院 ・・・ 徒歩8分
・大元小学校 ・・・ 徒歩9分
・大供西公園 ・・・ 徒歩1分
・野田公園 ・・・ 徒歩2分
・野田郵便局 ・・・ 徒歩3分
・トマト銀行野田支店 ・・・ 徒歩5分
・おかやま信用金庫大元支店 ・・・ 徒歩9分
・百十四銀行大元支店 ・・・ 徒歩10分
・中国銀行大元支店 ・・・ 徒歩10分
などなどとても魅力的なマンションです
こちらのマンションから一室売却のご依頼を頂きました

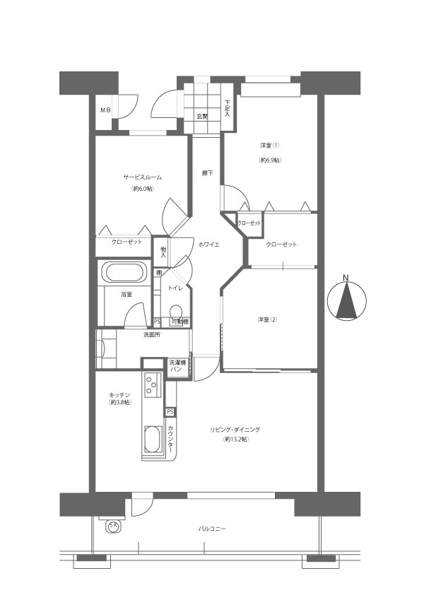
広々した3LDKのお部屋です
フローレンス野田グランドアーク702号室
現在オーナー様がお住まい中ですがご見学希望の方はウェーブハウスの鈴木までお気軽にお問い合わせ下さい
フローレンス野田グランドアークの過去取引事例はマンションバンクへ
岡山でマンションリノベーションをお考えの方はウェーブハウスにご相談ください
フローレンス野田グランドアークの自動無料査定をするなら不動産売却王へ

『フローレンス野田グランドアーク』
・平成20年2月築
・鉄筋コンクリート造
・15階建て
・総戸数:44戸
・全戸南向き

・敷地内に1台平面駐車場が無料で確保できます

・ペット飼育可能

・フルフラット設計

・宅配ボックス有
〈周辺環境〉
・らむ~マート ・・・ 徒歩1分
・生鮮市場きむら ・・・ 徒歩9分
・A-プライス岡山店 ・・・ 徒歩8分
・おおもと病院 ・・・ 徒歩8分
・大元小学校 ・・・ 徒歩9分
・大供西公園 ・・・ 徒歩1分
・野田公園 ・・・ 徒歩2分
・野田郵便局 ・・・ 徒歩3分
・トマト銀行野田支店 ・・・ 徒歩5分
・おかやま信用金庫大元支店 ・・・ 徒歩9分
・百十四銀行大元支店 ・・・ 徒歩10分
・中国銀行大元支店 ・・・ 徒歩10分
などなどとても魅力的なマンションです

こちらのマンションから一室売却のご依頼を頂きました


広々した3LDKのお部屋です

フローレンス野田グランドアーク702号室
現在オーナー様がお住まい中ですがご見学希望の方はウェーブハウスの鈴木までお気軽にお問い合わせ下さい

フローレンス野田グランドアークの過去取引事例はマンションバンクへ
岡山でマンションリノベーションをお考えの方はウェーブハウスにご相談ください
フローレンス野田グランドアークの自動無料査定をするなら不動産売却王へ


